【項目名稱】:東南智匯城
【項目面積】:120㎡
【設計風格】:臺式風格
【設計主創】:曹小雨
╱案例初印象Impression╱
行經溫潤木色,彷彿林間漫游
以踏實沉穩步調,穿越溪水之澗
旋轉的渦流,帶來魚躍的喜樂
書中有話,居中有味
以眼前的盛景,換欣喜的張狂
為沉寂已久的空間
漫撒曙光
╱設計詮釋annotation╱
此案例為石家莊金舍裝飾-東南智匯城120平米臺式風格裝修效果圖。臺式風格體現一種大氣和對稱,表現出一種大戶人家中廳堂的感覺,方方正正,大和歸一。很多人都不懂臺式風格的設計是什么樣的,或許有些人覺得和日式風格差不多,室內設計中色彩多偏重于原木色,以及竹、藤、麻和其他天然材料顏色,其實臺式風格注重的是室內空間簡約、自然,沒有紛繁復雜的裝飾,僅用質樸的色彩加上線條感極強的設計手法,簡簡單單的感覺便能造出很有質感的空間。
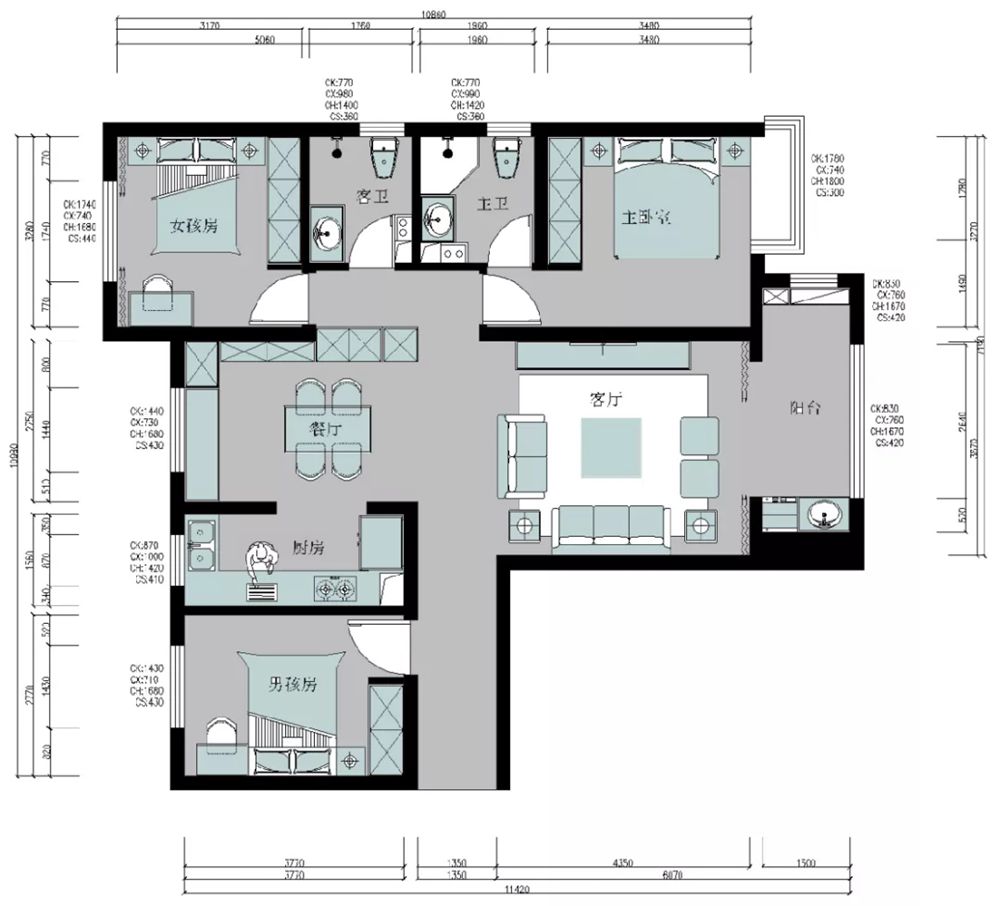
丨平面圖—Plan丨

丨客廳—Living Room丨



丨餐廳—Dining Room丨


丨玄關—vestibule丨

丨臥室—Bedroom丨



丨廚房—Kitchen丨



用心設計
無須華麗的裝飾與堆疊
將最純粹的自我和情感釋放其中
眼睛看到的,心里感受的
一定是一個極其沉靜而本真的空間